——最初にリノベーションの概要をお聞かせください。
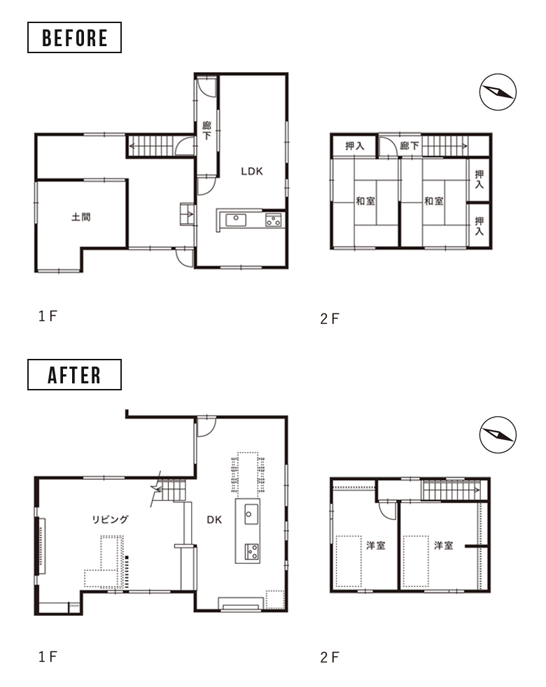
(営業・設計)奥様のご実家の一部(ご家族が使っていたLDK、土間、物置となっていた畳敷きの一部屋)をリノベーションさせていただきました。ご家族はご夫妻とお子様2人、お母様は母屋部分にそのままお住まいです。
——今回、リノベーションを検討されたきっかけは何だったのでしょうか。
(営業・設計)お子様が成長するにつれて、家族で過ごすスペースの狭さが気になるようになったからと伺っています。特にリビングが手狭で、子ども部屋もない状況でした。また、ご高齢のお母様が一人にならないよう、同じ建物内で暮らし続けられることも、ご実家をリノベーションする理由になったそうです。
——ディテールリノベに決めた理由をお聞かせください。
(営業・設計)他社にもご相談されたそうですが、リフォーム程度の提案しかなく、予算も少しオーバーしてしまったと伺いました。当社ではご要望を踏まえながら、予算内で実現できるリノベーションをご提案できたことが大きかったと思います。「希望が叶えられる」と感じていただき、ご依頼くださいました。
——設計のポイントについて教えてください。
(営業・設計)土間スペースと畳の一部屋をリビングスペースにし、開放感を持たせました。もともとLDKだったスペースはダイニングキッチンに変更。ゆったりと使えるようにしています。

物置になっていた土間スペースと畳の部屋。暗く、老朽化が進んでいた空間を、明るいリビングへと計画。

畳の部屋の壁をなくし、明るく開放的なリビングに生まれ変わった。
階段の片側は壁をなくし、おしゃれな鉄骨階段を採用。抜け感を出すことで広さを感じられる工夫をしました。

以前は両側に壁がある階段室だったが…

リビングを広く感じられるよう、オープンな鉄骨階段に。
また、奥様のご希望でキッチンとダイニングを横並びに配置。周りを回遊できるアイランド型としたことで、家事もしやすく、空間全体が明るく見えるようになっています。

リノベーション前のLDK。壁が多く圧迫感があり、家族4人でくつろぐには窮屈だった。

リノベーション後、同じ角度から撮影。圧迫感のあった壁を取り払い、ゆとりある食卓スペースに。
——当初のご希望以外にご提案されたことはありますか。
(営業・設計)最初、土間側だけを改装し元のLDKはそのまま残す計画だったそうです。LDKを含めても予算内で対応できますし、やるなら中途半端にせず全部やった方が良い旨をお伝えしました。奥様からもキッチンの老朽化が気になってきた、というお話を伺いましたので、キッチンの入れ替えも合わせてご提案させていただきました。
——内装デザインのこだわりについて教えてください。
(営業・設計)木目を多めに使ったナチュラルテイストをベースに、アクセントとなる青や緑を随所に取り入れました。リビングは天井が低い構造でしたので、梁を現しにすることで広く感じられるよう工夫しています。この天井の形状を活かして吊り下げのスポットライトを配置し、黒のラインで空間を引き締めました。

現しの梁の天井と、アクセントの吊り下げスポットライト。リビングを広く見せる工夫がここにも。
——完成後のご家族の反応はいかがでしたか。
(営業・設計)広いリビングを楽しみにされていたご主人からは、大満足とのお声をいただきました。奥様からも「広いキッチンになり理想の空間が叶った。お友達を呼べるようになって嬉しい」と言っていただき、私たちも提案してよかったと感じました。
私自身、ディテールリノベで初めて担当させていただいたお客様でしたし、ご希望にはない提案を受けてくださったことが嬉しかったですね。
施工事例を詳しく見る
・施工面積:27.0坪
#管理番号:16714167
#シンプルモダン #ヴィンテージモダン #ナチュラルモダン #リフォーム・リノベ #家事がラク #子育てしやすい #料理を楽しむ #映画を楽しむ #こだわりの内観デザイン #おしゃれ #かわいい #開放感 #落ち着き #オープンLDK #リビング階段 #スキップフロア #スケルトン階段 #スタディカウンター #シースルー階段 #ダウンフロアリビング #子供部屋 #オープンキッチン #木造軸組 #高気密・高断熱住宅 #省エネ住宅