
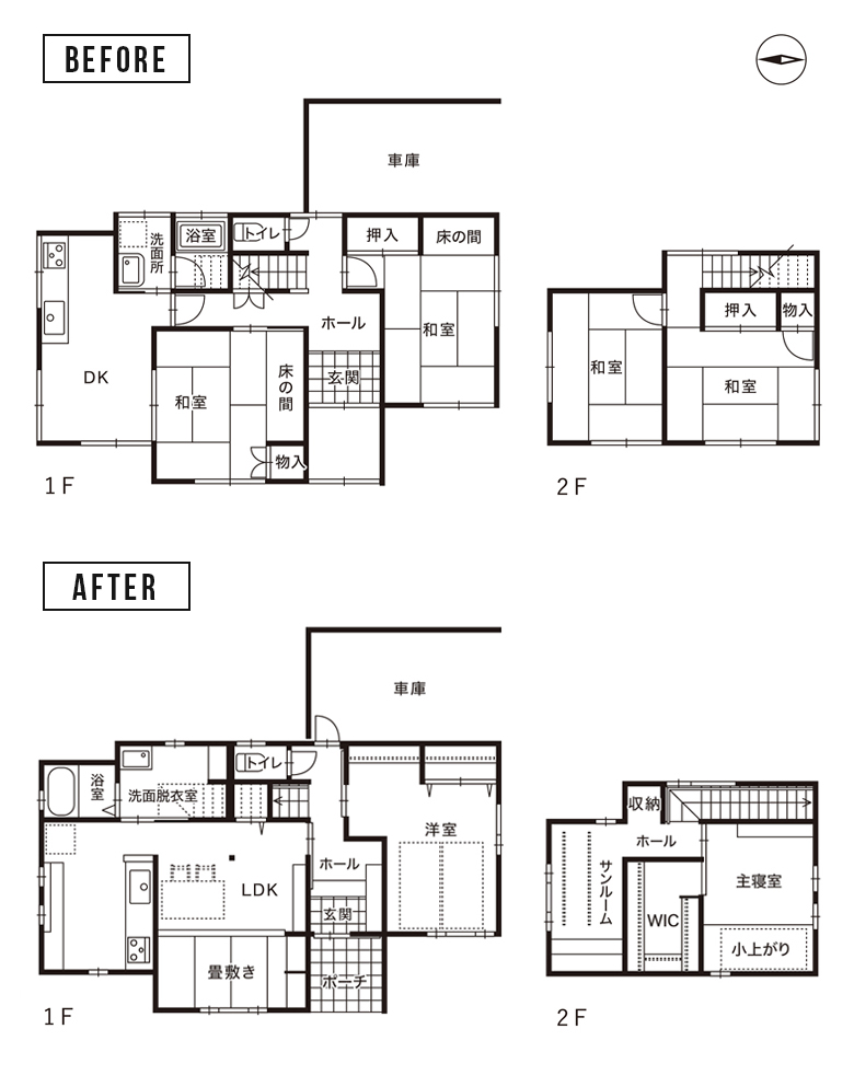
築45年の木造住宅にお住まいだったご両親との同居を考えた娘様。
寒さや老朽化への不安から、断熱改修と耐震補強を行い、安心して長く暮らせる住まいへとリノベーション。
冬は暖かく夏は涼しい快適な空間に加え、リビングを広く見せる工夫を設計に盛り込み、普段は家族でゆったり、親戚や友人が集まればにぎやかに過ごせる空間へと一新。
古い家でも性能向上とデザインの工夫で「安心」「快適」「長く住める」住まいを実現。
実際の工事内容や設計のポイントを体感できる見学会です。
マイホームをご検討中の方、中古住宅購入を考えている方、性能向上リノベに興味のある方はぜひご来場ください。
・延床面積:25.8坪
【間取り】

【お施主様からのご要望】
・普段はリビングでくつろげる住まいにしたい
・親戚や友人が来たときに、みんなで集まれる空間にしたい
・冬は暖かく、夏は涼しく快適に過ごせる家にしたい
【見学会でよく相談される内容例】
・お金や相続のこと
・二世帯住宅のこと
・デザインのこと
・良質な素材と性能のこと
・建て替えかリノベかで迷っていること
・新潟の気候や風土にあった設計のこと
見学会は予約制となります。
ご来場の際は事前にご予約いただけますよう、よろしくお願い申し上げます。
会場:長岡市下々条町

